Precision Millwork & Exhibit CAD Detailing Services
Premium Millwork Shop Drawings & 3D Kitchen Renderings
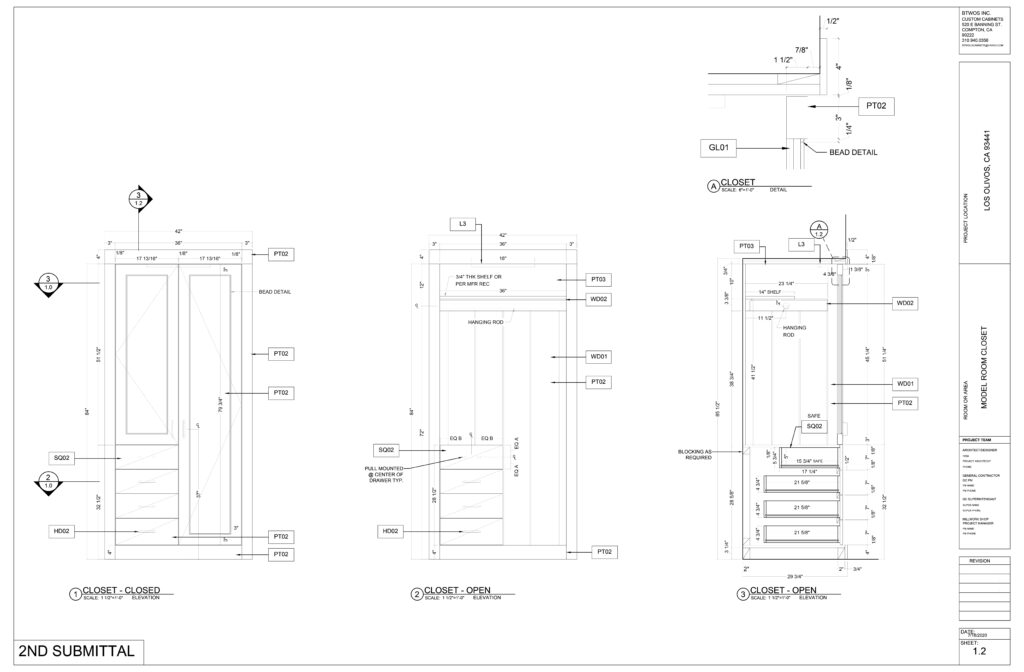
We provide high-quality millwork shop drawings, cabinetry plans, furniture details, and 3D renderings for both residential and commercial projects. Our services include custom casework, architectural millwork, cabinet drafting, and CNC-ready templates. With our online CAD drafting services, clients across the United States—whether in California, Colorado, or beyond—can easily receive precise, fabrication-ready shop drawings without being onsite.
How Our Process Works
First Submittal – Typically 2–3 weeks per room for client, contractor, or architect review.
Second Submittal – Revisions completed within 1 week for final approval.
Record Drawings – Optional service after installation for documentation and future reference.
Detailed CAD Drafting Services
We also provide comprehensive CAD drafting for architects and interior designers, including:
2D interior elevations with dimensions, heights, and custom built-ins
Cabinetry, furniture, fixtures, and equipment layouts
Locations of switches and wall-mounted items
Doors, windows, materials, and finishes
Retail store facades and commercial interiors
Why Choose AG CAD Designs?
Industry Expertise – Our experienced team ensures all shop drawings meet construction standards.
Quality Assurance – Every drawing is reviewed for accuracy, precision, and error-free delivery.
Time Savings – Quick turnaround allows you to move your project forward efficiently, saving both time and effort.
Our Hourly Pricing
We base our shop drawing fees on the complexity and scope of each assignment:
Residential Projects: Around $70 per hour
Commercial Millwork Projects: Around $100 per hour
For clients with ongoing work or multiple projects, we can create a personalized pricing plan that works well for both parties.
Effortless Remote Collaboration for Millwork Shop Drawings
You don’t need to be onsite to take advantage of our millwork shop drawing services. We make the process simple, convenient, and fully remote. Here’s how we work together from anywhere:
Get in Touch – Reach out via phone, email, or our website to schedule an initial consultation.
Send Your Drawings – Share your construction plans or architectural concepts digitally.
Collaborate Online – We refine and develop your shop drawings remotely, keeping you involved every step of the way.
Receive Final Drawings – Your completed millwork shop drawings are delivered digitally, ready for fabrication or construction.