Custom Millwork & Exhibit Design CAD Detailing Services

Architectural Millwork & Custom CAD Drafting Services
At AG CAD Designs, we specialize in creating high-end residential and commercial casework, cabinetry, furniture, and architectural millwork shop drawings. Our expertise extends to cabinet drafting drawings, 2D elevations, and 3D renderings, helping contractors, architects, and interior designers bring their projects to life.
We provide online CAD drafting services nationwide, making it easy to collaborate remotely from anywhere in the United States. Every drawing is prepared with precision, attention to detail, and according to your specifications. For manufacturing support, we can also provide CNC-ready drawing templates. Whether youβre preparing a client proposal bid or need shop drawings for construction, our team ensures clarity and accuracy at every stage.
Our Process: Clear & Collaborative
To ensure smooth project execution, we follow a structured procedure:
First Draft Submission β Delivered within 2β3 weeks per room for client, contractor, or architect/designer review.
Revised Submittal β Final revisions completed within 1 week.
Record Drawings (Optional) β Available after construction, upon request.

Hourly Rates for Shop Drawing Services
Our pricing is transparent and based on the scope, scale, and complexity of each project.
Residential Shop Drawings β Average rate: $70/hour
Commercial Millwork Shop Drawings β Average rate: $100/hour
For clients with ongoing or consistent projects, we also offer customized pricing packages designed to provide better value while ensuring top-quality service.

Effortless Remote Collaboration for Millwork Shop Drawings
You donβt need to be on-site to take advantage of our millwork shop drawing expertise. Our services are fully remote-friendly, allowing you to get accurate, high-quality drawings from anywhere in the country.
How We Work Together:
Get in Touch β Contact us via phone, email, or our website to set up a consultation.
Share Your Designs β Provide your architectural plans, CAD files, or concept sketches electronically.
Collaborative Development β We create and refine your shop drawings online, incorporating your feedback at every step.
Receive Final Drawings β The completed shop drawings are delivered digitally in formats ready for production, presentation, or review.
Our remote process ensures precision, efficiency, and clear communication, giving you professional results without the need for in-person meetings.











AG CAD Designs β Expert Millwork Shop Drawing Services
AG CAD Designs provides online CAD drafting services for custom luxury millwork, creating architectural shop drawings based on design renderings, sketches, and client input. Each drawing is clear, precise, and fabrication-ready, including detailed notes on materials, finishes, and construction specifics.
Hire Californiaβs Top Millwork Shop Drawing Studioβyour trusted partner in transforming millwork designs into accurate, actionable shop drawings.
Our CAD Shop Drawing Services Include:
Architectural Millwork Shop Drafting β for both residential and commercial projects
Cabinet Detailing & Drafting β precise layouts for kitchens, baths, and built-ins
Commercial Casework & CNC Drawing Layouts β optimized for fabrication
Detailed Cabinetry Layouts & Designs β including elevations and floor plans
Interior Designer Support β 2D elevation and floor plan CAD drawings for residential or commercial projects
Final File Formats: DWG, DXF, PDF β ready for manufacturing, client presentations, or contractor use.
Our Professional Millwork CAD Shop Drawing Services
We offer a comprehensive range of millwork CAD services to support fabrication, assembly, and design. Our solutions are tailored to meet the needs of architects, designers, and contractors:
2D Drafting β Create accurate two-dimensional floor plans, elevations, and sections for millwork design and construction.
3D Modeling β Develop three-dimensional digital models of millwork products, including both solid and surface models.
Detailed Drawings β Produce highly detailed drawings with precise annotations, dimensions, and notes for fabrication and assembly.
Assembly & Fabrication Drawings β Show how individual components fit together to form complete millwork products.
Shop Drawings β Provide cutting lists, production drawings, and assembly instructions to streamline fabrication.
Revisions & Updates β Update and revise existing drawings to reflect design changes, fabrication adjustments, or new requirements.
Surface Modeling β Create realistic surface models, including textures, materials, and finishes for client approvals or visualization.


Millwork Shop Drawing Requirements & Process
At AG CAD Designs, we produce high-quality millwork and casework CAD shop drawings using AutoCAD, tailored to your project specifications. We work closely with designers, architects, interior designers, and general contractors to ensure every drawing is accurate, clear, and fabrication-ready.
We also offer online millwork shop drawing services, including redline revisions and field dimension updates, making it easy to collaborate remotely from anywhere in the U.S.
Californiaβs Trusted Detailed Shop Drawing Service β Elevating Your Millwork to the Next Level!
What We Need From You
To produce precise and efficient shop drawings, please provide:
Architectural drawings, floor plans, and interior elevations (PDF or DWG format)
Project timeline or due date for the 1st submittal
Sample shop drawings from previous projects (optional)
FF&E specifications (Furniture, Fixtures, and Equipment)
Typical details (mouldings, door types, cabinet joinery)
Material selections, finishes, accessories, and hardware schedules
Light fixture specifications
Our Millwork Shop Drawing Process
Standards File Creation β Compile a reference file with all project standards for current and future projects.
Proposal Submission β Provide a detailed quote with costs and project timeline.
Project Kickoff β Work begins immediately after a 50% deposit and written approval are received.
Midway Submittal β Preliminary drawings are submitted for review, corrections, or approval.
Collaborative Feedback β Incorporate input from Production Managers, Woodworkers, Engineers, or Architects to ensure accuracy.
Final Delivery β Final drawings are released upon receiving the remaining 50% payment.
Important Note: We are not licensed engineers. All shop drawings are submitted to the owner, architect, or interior designer for final approval and to the millwork manufacturer to ensure compliance with construction standards.
Information Required to Start Millwork/Casework CAD Shop Drawings
To produce accurate and fabrication-ready millwork or casework CAD drawings, we need the following details from you:
1. Cabinet Exteriors & Interiors
Finishes β All exposed surfaces
Cabinet Interiors β Material and finish used
Door Styles & Front Panel Materials
2. Hardware & Accessories
Door Hinges β Example: Concealed BluMotion soft-close
Drawer Guides β Example: Under-mount BluMotion soft-close
Crown & Base Moldings β Include manufacturer specifications
Open Shelving Bracket Supports
Trash, Roll-outs, Plumbing Equipment, Fixtures, Sinks, Appliances, etc.
3. Cabinet Construction Details
Construction Type β 1/2″ or 3/4″ Partial Overlay Doors, Inset Door, Traditional 1-1/2″ or 2″ Face Frame Cabinet Box, or Overlay Door, European Cabinet Box
Gap Between Doors & Drawers β 1/8″ or 1/4″
Drawer Construction β Example: 1/2″ Baltic birch plywood sides
Countertop Overhang β 1/2″, 3/4″, or 1″
Grain Direction β Vertical or Horizontal
4. Verification & Measurements
Field Verification β General Contractor to confirm all measurements no later than the first submittal
All Dimensions β Measured from faces of finished walls
5. Lighting Specifications
Include details for all lighting to be integrated into cabinetry or millwork
Typical Cabinet Construction samples: Frameless, Overlay Face Frame & Inset





Cabinetry Corner Typical Fillers and Reasons why to use them







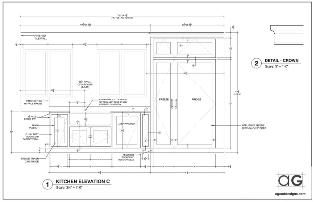
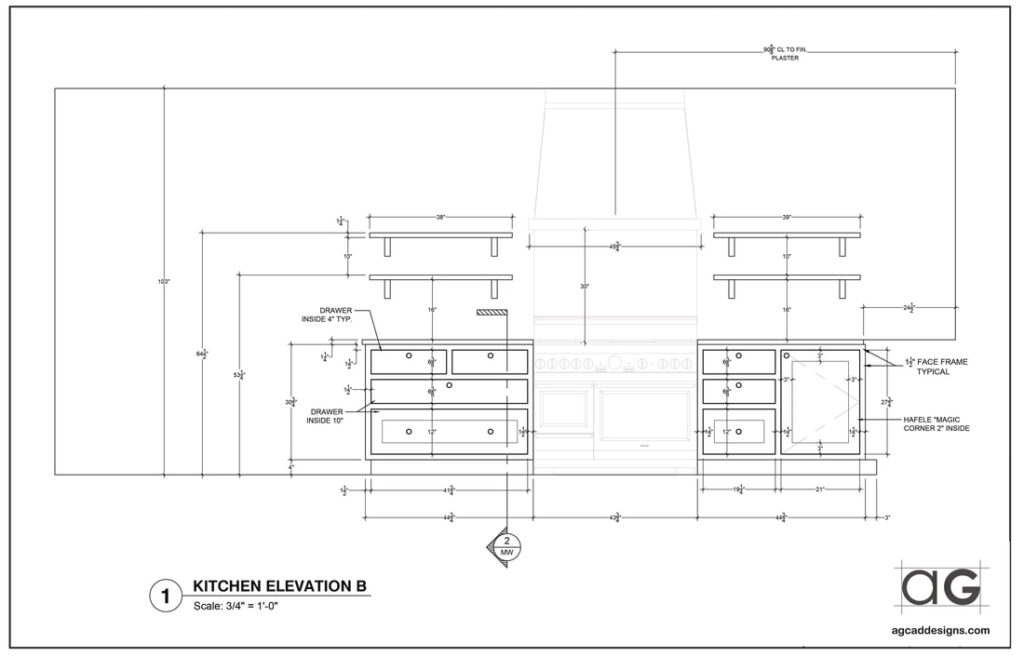
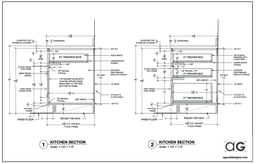
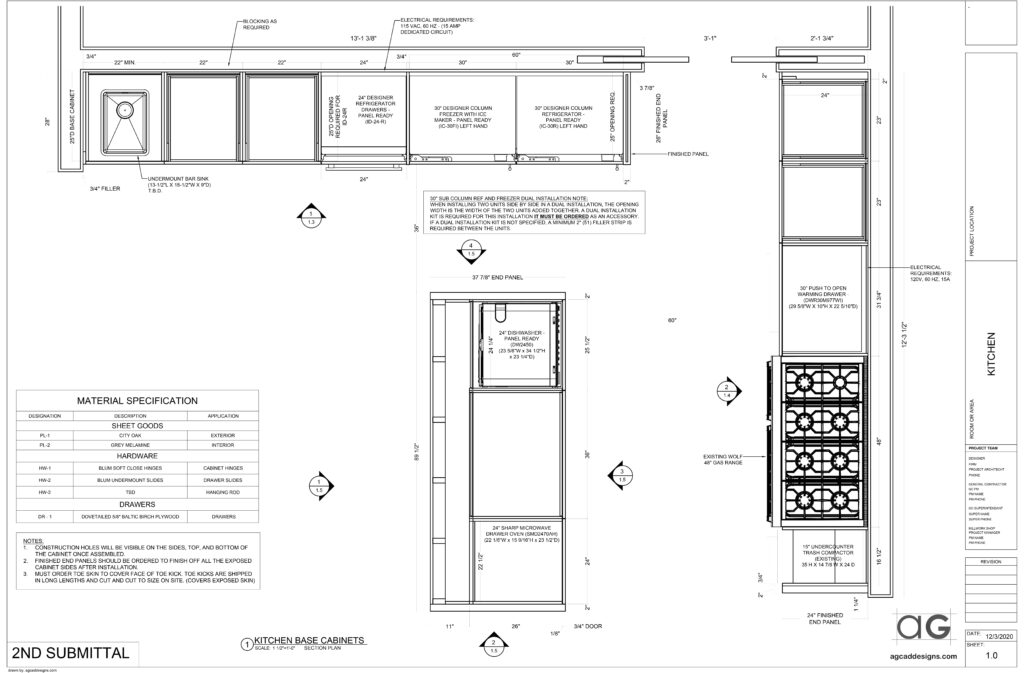
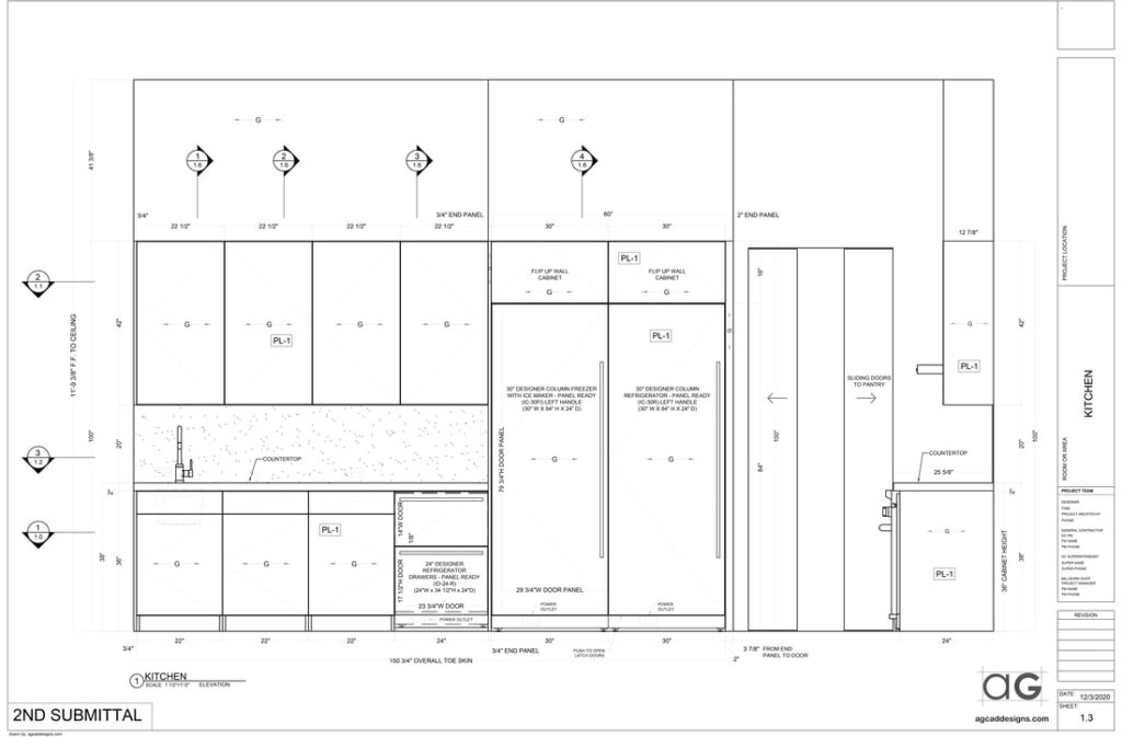
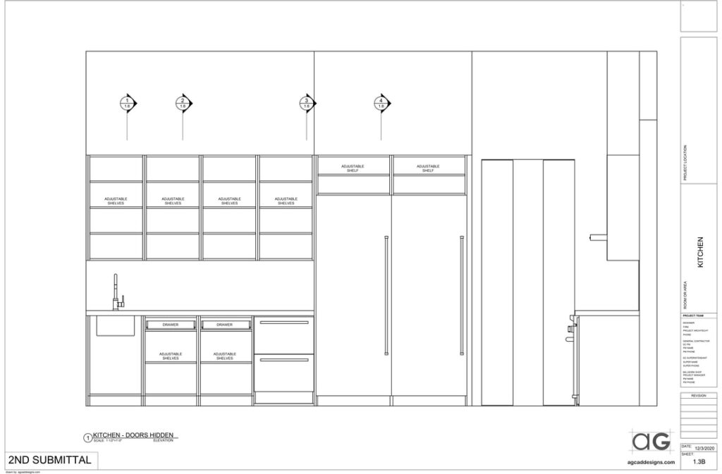
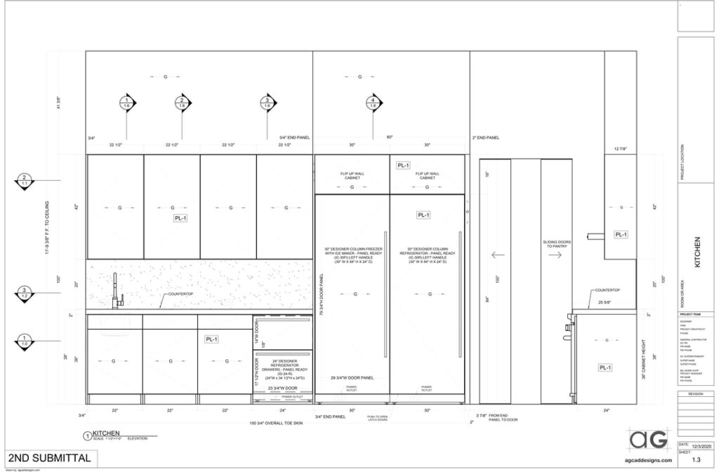
Kitchen Millwork Shop Drawing Sample:









